心地よく快適に永く住む我が家
不動産会社ではなく、中立の立場から…
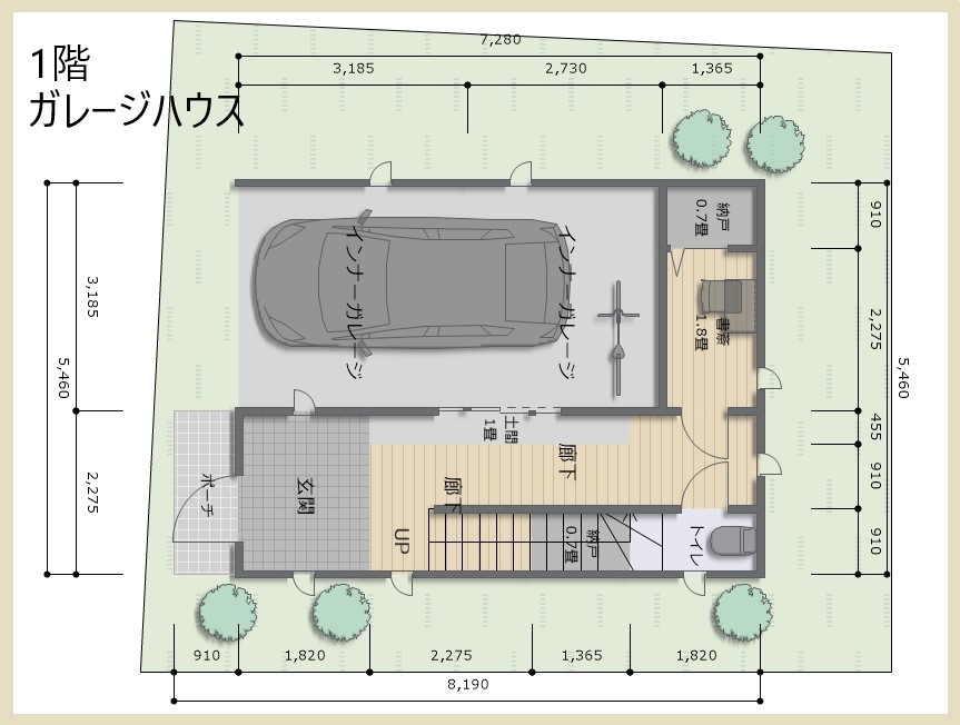
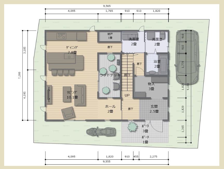
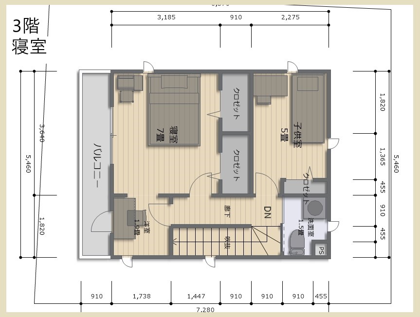
最初の1歩は間取りのご相談
家族でどんな間取りが快適なのか?太陽の入り具合、風の通り抜け、家族のそれぞれの動線など、たくさんの検討課題があります。
ZEH ゼロ•エネルギー•HOUSE/2030
2030年ZEH基準の義務化、住宅のエネルギー消費量をゼロに抑える、夏は涼しく、冬は暖かい性能住宅、高断熱・高気密を組み合わせた設計を叶えます。
HOUSEオピニオンとは・・
SDGsハウジングプランナー資格保有者と宅地建物取引士が中立の立場で、疑問、質問にお応えいたします。空間デザイナーのプランもご提案。
2025.04.05
2024.11.16
2024.03.21
2022.04.05